新築一戸建て沼津市大岡2930-10
金子工務店 設計・施工。外観や植栽のみならず、外のつながりを感じる他にないワンランク上のリビング空間のあるお家です。
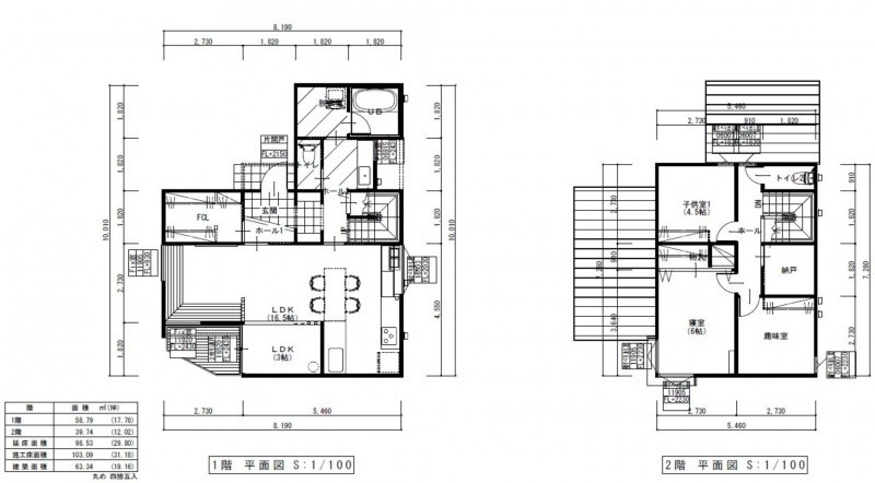
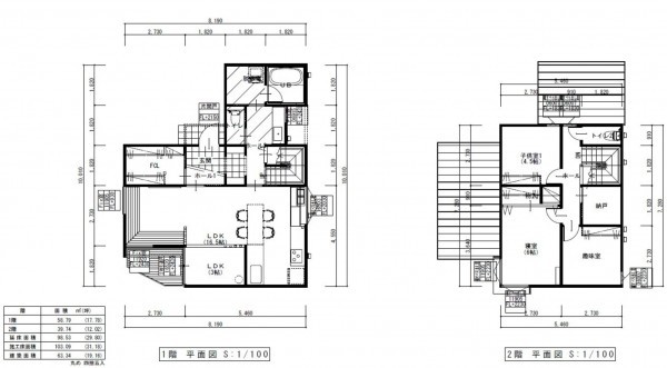
物件概要
- 所在地
- 沼津市大岡2930-10
- 価格
- 4,560 万円
- 交通
-
御殿場線 大岡駅 まで 徒歩16分
- 土地面積
- 公簿 151.47㎡ (45.81坪)
- 建物面積
- 98.53㎡ (29.80坪)
- 間取り
- 3LDK
- 築年数
- 2025年 (令和7) 10月
- 建ぺい率
- 60%
- 容積率
- 200%
- 土地権利
- 所有権
- 構造および階数
- 木造 地上2階建
- 小学校区
- 門池 (500m)
- 中学校区
- 門池 (1400m)
- 私道負担
- なし
- 地目
- 宅地
- 現況
- 空
- 引渡時期
- 相談
- 駐車場
- 有 普通2台
- 上水道
- 上水道
- 下水道
- 浄化槽個別
- ガス
- 都市ガス
- 都市計画
- 市街化区域
- 用途地域
- 1種住居
- 建築確認番号
- 第2025確認建築静住ま01915号
- 設備・条件
- 側溝、システムキッチン、カウンターキッチン、シャンプードレッサー、洗浄便座、浴室乾燥機、追い焚き、複層ガラス、ウォークインクローゼット、モニタ付インターホン、ペット可、1BOX駐車可、駐車場2台分、床下収納、トイレ2箇所
- 備考
-
~ライフインフォメーション~
●ファミリーマート沼津岡一色…徒歩約14分
●スーパーカドイケ本店…徒歩約10分
- 取引態様
- 売主
その他周辺物件
この物件は10463人の方が興味を持っています。
